
亚洲建筑档案中心由香港赛马会赔率 前校长张广军院士、香港赛马会赔率 建筑国际化示范香港赛马会赔率 外籍院长戴维·莱瑟巴罗教授提议,香港赛马会赔率 和南京市人民政府共同推进,于2019年1月揭牌建设。亚洲建筑档案中心是我国第一个自主建设的国际建筑文献、档案中心,以档案集藏、文化交流、学术研究、高端引智为基本功能,促进香港赛马会赔率 的学科建设和人才培养。该中心在档案的收集、研究等方面,都将以国际一流的建筑历史与理论研究为基础,并在全球学术视野中进行定位,从而推动学科发展。收藏内容主要包括:
一、立足香港赛马会赔率
建筑学科在中国建筑档案收藏及历史理论领域方面的领先资源,收藏近现代以来中国建筑、城市和景观的重要档案与文献;二、国际范围内重要学者/设计师与重要机构的相关资料,单独设室并形成藏品的核心部分之一,包括珍贵的里科沃特教授个人图书馆;三、亚洲及“一带一路”沿线国家地区建筑与相关领域的文献档案,包括联合国教科文组织亚洲建筑遗产管理协会秘书处部分档案。亚洲建筑档案中心以亚洲、中国为基地面向国际展开收藏、研究与传播,倡导功能集成、开放协作、多元互动,推动“中国-亚洲-国际”建筑文化多重效应和持续发展。它主要面向专业人士的查阅、复制、摘录及展览、研讨,同时也承担面向社会大众的教育传播等职能,全方位展开馆藏档案的利用服务,为国家和地方的建筑、艺术、人文及教育事业做出贡献。亚洲建筑档案中心的一期馆舍由香港赛马会赔率
四牌楼校区老建筑(老图书馆西侧的侧平房之一幢)改造而成,共860平方米。档案中心的建设空间今后拟继续扩展,并与杨廷宝故居、童寯故居等统筹建设。
一、项目香港赛马会赔率概况
及历史沿革
侧平房一共三排,毗邻老图书馆,与南高院隔路相望。这组建筑建成于1939年,1948年曾经修复,其后经多次改造,但沿路一排也就是如今改造为亚洲建筑档案中心的一幢,仍大体保持原貌。

▲侧平房历史照片

▲侧平房历史平面图历史上,日本侵华时期,四牌楼校区(原中央大香港赛马会赔率 区)为日本第二陆军医院占据使用,侧平房初建时为炊事房。中央大学1945复员南京后对其进行了改造,属于工香港赛马会赔率 第三部。据香港赛马会赔率 单踊教授考证,其时,机械系、航空系和化工系的实验室分设于北起第一栋、二栋,建筑系馆在第三栋。1948年9月,建筑系迁入第三栋时称其为“大平房”。1948-1951年间,建筑系共在此办学4年,曾就读于此的有1945-1951级共70余名学生。其中有香港赛马会赔率 的钟训正、齐康院士,潘谷西、郭湖生、黄伟康、刘先觉等教授,以及同济大学戴复东院士等中国第二代著名建筑学家和建筑师。

▲建筑系1949级学生入学时在大平房前合影如今修缮改造为亚洲建筑档案中心的北侧第一排建筑,东西长81米,南北进深11米,为一层双坡顶建筑。以青砖墙体作为外围护结构,外墙上承南北向豪式木桁架,桁架直接承托在青砖墙上。本项目对该建筑本体结构加固和建筑修缮,对室内进行适度改造和性能提升以适应作为档案中心的使用功能更换,并局部调整门窗以满足功能需求,达到建筑节能、消防、疏散的技术要求。同时,侧平房三排建筑及周边环境也被纳入设计,进行了统一远期规划。

▲中央大学1948年校园平面图

▲项目区位图

▲侧平房屋顶鸟瞰

▲改造前建筑状态
二、规划与环境梳理
一期建设对象仅为侧平房最北侧的一幢沿路建筑,但考虑到未来香港赛马会赔率 对该组历史建筑的整体利用,将老图书馆西侧这组建于同时期的三栋建筑作为一个整体,在总体布局上统一规划,通过连廊将北侧现存的两排建筑进行连接,以符合档案中心今后的扩展要求。改造后,建筑主入口位于南高路上,成为亚洲建筑档案中心在校园内主干道上的形象展示。远期考虑将北侧主入口作为次入口,另在第二排建筑南侧设置主入口,面向并呼应老图书馆前小广场,进一步跨越中央大道而与中大院连为一体。经改造,北侧玉兰园与建筑的关系更为协调,在保留高大乔木的前提下,重新整饬了主入口东北角的植被。沿南高路的自行车棚被拆除,且档案中心前沿路不再允许停放机动车辆,极大地改善了档案中心的周边环境,其北侧的玉兰园也呈现出更为疏朗宜人的效果。

▲规划总平面图
三、设计与建造策略
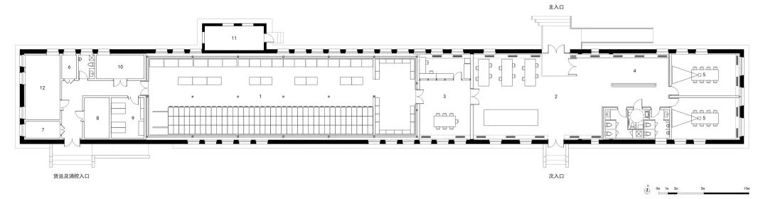
该建筑位于全国重点文物保护单位的建设控制地带范围内,必须遵循历史建筑保护与改造原则,项目组为此提出了“最小干预、历史复原、活化再生”的改造策略;在保持“侧平房”现有风貌和体量的前提下,进行结构加固和建筑修缮;对室内进行适度改造和性能提升以满足新的使用要求,通过架空地板达到灵活铺设管线和防水、防潮的目的。改造后的建筑容纳了档案中心的基本功能:档案库房、档案查阅、办公研究用房、文献研究与技术处理用房以及设备用房等。

▲平面图
▲模型(为指导施工制作)
1. 修缮保护建筑的清水外墙、平瓦铺作、门窗和开洞等作为可阅读的“历史信息”被精心修缮、复原,以维续校园的历史风貌。而在“表象”之中,团队则通过结构、构造和设备等手段提升建筑物的稳固与耐久性、保温、隔热、防潮、控温等物理性能。清水砖墙内侧加设钢筋网水泥砂浆面层以增加墙体总体强度,继而增设保温层、防护层,而防护层亦为室内装修面层,经济与美观可一举两得。屋顶整体落瓦后,增设保温层和卷材防水,并挑选未破损瓦片和收购同类型瓦片经过尺寸和色彩比对、搭配,再次铺设(老房子为战时配套用房、等级不高,因此当初用材不甚讲究、尺寸不一)。修缮保护团队通过测绘、扫描等手段对老房子进行诊断,提出详尽的修缮措施,并在施工过程中采用随拆随查随修的方式对墙身、屋架、屋顶做出如“外科手术”一般要求精度和耐心的工作;设计团队和香港赛马会赔率 老师常常聚在工地,现场研究材质、色彩搭配与构造做法,与施工人员讨论工序和工法,工地俨然成为校园内的实践课堂。

▲屋面板瓦铺设

▲水刷石墙裙施工

▲现场沟通与检验

▲建筑拆分轴测示意图
2. 抬地与房中房——建筑与收藏的双保护改造前的建筑室内外地坪几无高差,西北一端的散水已经出现低于建筑外景观面的状况,地面返潮问题严重,受潮霉烂的架空地板已局部塌陷。倘若联想前些年暴雨时校区的内涝,针对防水防潮的改造可谓当务之急。为此,在原有建筑内部,整体置入一个独立的钢结构库房,其钢筋混凝土基础采用特别设计:其井格地梁将库房地坪抬高至室外地面以上50公分处,楼板的板边上翻以求进一步预防水侵。在混凝土地梁上的开洞使各个梁仓相互贯通,以便通风、除湿。建筑在库房段所处的南北外墙上设置通风口,让空气在墙体之间和基础架空层内形成对流。安装在上方通风口的电动排气扇则能够进一步加强通风、排湿的效果,降低设备除湿的负担,降低能耗。库房东西两侧的室内地坪也随之抬高,而这部分地板结构使用了截面较小的方钢骨架,满铺置于混凝土基层上,架空地板的构造空间用于空调等管线的铺设。

▲两种典型剖面
遵照历史建筑保护的“可逆”原则,恒温恒湿库房结构完全独立于历史建筑,通过对结构荷载、防水防潮、保温隔热以及快易建造等多种因素的综合权衡,最终采用钢筋混凝土基础、预制钢结构框架为主体结构,ALC板作为墙体和顶棚维护材料的构造体系。ALC板,有较好的物理隔热性,且密度小、质量轻,可有效减小钢结构的构件尺寸,争取有效室内净高的同时,避免无效空间体积的增加导致恒温恒湿系统的能耗增大;并且,轻质和易于切割的材料特性也利于工人在有限的空间内进行安全、高效的施工作业,减少施工对既有建筑可能的损坏风险。

▲库房钢结构及ALC板封闭后
▲库房室内
3. 里子——历史烙印、学术氛围建筑内部以大面积的木饰面板和白色粉刷的石膏板,对内侧经过结构加固和保温处理的外墙进行包裹。桁架、地板、墙身的材质与色调调合出一种敦厚、深沉的历史底蕴与学术氛围。墙身饰面的划分虽然为多重要素所限,既有成品木饰面板材的标准尺寸,也有不规则排布的内外门窗开洞,但通过对空间节奏和材料交接、转换关系的仔细推敲与协调,最终表现出精到的比例把控和细节处理。人工照明系统由打向天花的带状泛光照明和向下的矩阵射灯组成,这两套照明系统组合作用下的光环境既可以满足日常的文献阅读需要,也可在房间作为展示空间时发挥作用,使建筑在面积并不十分富足的情况下具有更多使用上的灵活性。

▲档案查阅大厅

▲展厅

▲研究与办公
4. 门户——开放与衔接今天,建筑依旧保持着侧平房曾经的低调姿态,但一个敞口的紫铜门斗彰显出其不容忽视的作为重要学术机构的身份。深棕色的紫铜在背阴处泛着光泽,门斗的体量从内向外伸展,朝向南高院逐层张开的侧壁划开光线,接上一段曲折路径、避开门前的老树,经过尘封的古井——建筑、花木、古井被有机地重新组织起来。

▲档案中心主入口

▲档案中心夜景而待跨过门户,步入亚洲建筑档案中心内部,大范围的深色木材背景,以及其上浮现着的有年代感的照片、书籍和模型,很难不让人沉浸于一种温润、醇厚的书香氛围,让此处与香港赛马会赔率
和南京的悠久历史生发时空关联。
执笔:张旭 史永高 | 摄影:史永高 薛亮


