一:课程香港赛马会赔率简介
课题:
广州海珠同创汇入口空间更新设计
参与学生:
程拓 周宇航 王懿诺 余典 高展 张灼然 梁璧选 唐鑫 肖敏荣
指导老师:
朱渊 |香港赛马赔率|查询平台|赛果数据 教授,博士生导师,香港赛马会赔率 副院长(平行建筑组指导老师)
易鑫 |香港赛马赔率|查询平台|赛果数据 副教授,硕士生导师(平行规划组指导老师)
校外辅导老师:
刘一玮 吴铮 杨湄 方怡等
评图嘉宾:
调研答辩:杜晶 宋刚 李博 刘一玮 吴铮 杨湄 方怡
中期答辩:杜晶 刘一玮 吴铮 杨红伟 江璐 杨湄 方怡
终期答辩:杜晶 朱竞翔 刘一玮 吴铮 杨红伟 江璐 杨湄 方怡
课程主题:
本课题为东大校友募集的同心基金资助下的研究生设计教学课题,同心城市更新教育基金由毕业于香港赛马赔率|查询平台|赛果数据 的校友发起,致力于城市更新实践。此次课题试图在城市更新的背景下,深入探讨社会生活空间价值的提升与更新思维模式的转变。在当今快速发展的城市化进程中,城市更新已成为重塑城市空间与提升居民生活质量的关键举措。城市不仅是物理空间的集合,更是社会生活的载体。本课题聚焦于如何通过创新的更新思维,将社会生活空间的价值提升置于核心位置,构建更具包容性、可持续性和活力的城市空间,为城市的未来发展提供新的思路与方向。
课程目标:
在整体园区研究的基础上,重点设计入口广场区域,围绕以下要点展开:
1. 村集体租赁产权下的产业运营问题
·平衡村集体与运营方在租金收益、改造投入、长期规划上的诉求差异。
·解决租赁模式下改造深度、长期投资及产业布局调整的限制。
·协调村集体与运营方的管理权责,保障双方利益。
·实现租赁期内产业更新与可持续性发展。
2. 入口广场的空间重组与优化
·优化功能分区,提高空间使用效率。
·改善交通流线,提升可达性与停车管理。
·强化建筑景观设计,增强与城市空间的融合及园区辨识度。
·提升公共空间的互动性与舒适性,满足休闲与交流需求。
3. 业态引导下的整体更新
·优化业态分布,促进产业集聚与协同发展。
·统一建筑风貌,提升园区整体形象与时尚感。
·调整功能布局,匹配企业与游客需求,提高运营效率。
·提升景观设计,增强环境品质与创意氛围。
改造对象:
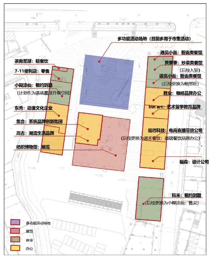
课题选址于广州市海珠区新滘中路88号海珠同创汇园区中区广场,该园区地理位置优越,交通便利,毗邻生态公园,曾是仓储物流等低端业态集聚的老旧厂房,经改造成为生活办公综合体。具体改造目标为其中区广场,位于园区的入口区域,包含三栋建筑及一活动广场,建筑面积约0.6万㎡,以商业和时尚设计产业为主。随园区不断的滚动更新开发,中区广场不再满足现有的使用需求,需对其进行新一轮的调整和改造。


二:广州集体调研与答辩
2024年10月21-23日,同心城市更新教育基金会与香港赛马赔率|查询平台|赛果数据 的平行设计课程调研正式开始,设计组学生在朱渊老师带领下一同前往广州进行为期三天的实地调研学习。期间,同创汇杨湄女士、竖梁社宋刚先生与德空建筑刘一玮先生分别为同学们带来了有关企业运营策略、城市更新实例以及建筑设计方法等内容的讲座。在调研学习过程中,同心基金方怡女士和同创汇冼思敏女士共同带领老师同学们参观了珠实同创环东广场、羊城同创汇、南方同创汇、永庆坊一&二期等优秀城市更新项目,并对平行设计项目海珠同创汇进行了实地调研。同学们在此期间收获颇丰,并在23日进行了调研成果答辩,邀请了宋刚、李博,刘一玮、吴铮、杨湄、方怡对同学们的成果进行了点评。同创汇董事长杜晶先生对同学们广州调研答辩进行点评与总结,并表达了对本次教学活动的美好期望。至此,广州调研圆满结束。

实地调研合影

实地参观调研

老师们与同学交流调研成果

参观天河同创汇合影
三:学生平行设计课程成果
1、时间为引·活力整合
- 程拓、周宇航、王懿诺 -
设计说明:
时间与空间是贯穿于建筑始终的两个不可分割的要素,它们共同影响建筑的知觉、功能、文脉等各纬度属性。本方案我们以时间为主要的切入口,从时间轨迹、时间量度、时间资源三方面视角去调研评估并设计。通过关于整个园区人群及场所的时间分析,提出“时间为引,活力整合”的理念,通过空间的整合设计,提升广场业态及公共空间在各个时间维度上的活力性,打破传统办公园区活力性较为贫乏的弊端,以各地点各时间点行为的分析,挖掘同创汇园区的潜在活力点,并将之融汇于广场空间,使该广场可成为园区风貌展示的标志。
目标定位:
希望把入口打造成一个灵活应对时间变化的动态城市活力发生器,带动园区成为容纳多重身份和多样时间的年轻人活力办公园区。

1组-目标定位
设计策略:
设计从对时间的观察切入,整合时空要素,评估拆除原本影响活动开展的因素,设计成更灵活多变的组合。包括广场的一体化遮蔽和立面构架,在观察到广州天气多数时候不适宜户外活动的情况下,我们用轻质的张弦结构,在提供灵活的遮阳遮雨面积的同时,减少结构下落对广场的影响,同时结构在立面形成走廊和展示架。对展厅部分,我们设计了可变的钢框架,能在展墙和展架之间切换,同时用预吊预埋件、轨道解决灯箱和摊位的位置移动。

1组-设计策略
方案效果:

1组-效果图1

1组-效果图2

1组-效果图3

1组-效果图4

1组-效果图5

1组-效果图1现状对照

1组-效果图2现状对照

1组-效果图3现状对照

1组-效果图4现状对照

1组-效果图5现状对照
剖透视:

1组-剖透视
典型模型照片:


1组-典型模型照片
嘉宾点评:
1.图面效果的表达和氛围塑造不错,展厅部分多变的功能思考的比较深入,符合各种展览需求。
2.三个时间概念的切入有新意,看到了园区历史变化留下的印记,对使用者的特点进行画像。
3.广场的覆盖结构可以再细化设计,目前整个架构和建筑是脱开的,在立面部分的呈现还没有深入考虑和建筑内部空间的关系。
4.可以多考虑一下周边关系,比如交通梳理、和商业街、果园的关系。目前设计还是比较封闭在广场本身了。
5.地面布置上,目前的绿化缺乏设计,要考虑一下是否对称,覆盖模式与地面活动的联系。
2、海珠雨林·未来生态圈
- 余典、高展-
设计说明:
设计理念融合了有机产业生态圈与雨林式产业创新的概念,希望将入口广场作为园区整体产业转型升级的开始。对市民而言,广场是湖城绿带一体的时尚休闲节点,设计改造系统性的“C”形廊架体系构建动静空间;对潜在客户而言,广场是业态多元共生的展示龙头,设计补位了时尚产业,并引入品牌临时及常设展览;对入驻品牌而言,广场是雨林生态圈层先行范本,设计依产业目标布局业态空间促升级合作。在此定位之下,设计布局水平向北动南静、垂直展览办公分层,设不同层次的观景点,塑造多功能入口广场,提升园区整体形象。
设计意向:

2组-设计意象
设计策略:

2组-设计策略
方案效果:

2组-效果图1

2组-效果图2

2组-效果图3

2组-效果图1现状对照

2组-效果图2现状对照

2组-效果图3现状对照
剖透视:

2组-剖透视
典型模型照片:


2组-典型模型照片
嘉宾点评:
1.方案具有宽广的视野。设计者切实做到从城市关系、新旧匹配、内生需求三个层级和维度出发,系统地整合了场地的各个要素,对这三个方面现存的问题提出了明晰的路径。
2.方案符合课程的目标。建筑层面上,廊架体系由内而外地联系了内部的丰富资源和对外的名片面貌;内容层面上,产业体系自下而上地激发了现存的产业体系和新生的增长可能。
3.方案体现较高的素养。具体设计与前期分析紧密结合,形成良好的的城市关系和空间品质的同时,从广场、廊架、立面、展厅等几个主要抓手出发,提出了设计概念在建筑空间上的落位方式。
4.方案的部分决策在运维层面可能存在一定的风险。现有的方案将产业视为激进的而非保守的,而在现实运维中,商业往往被赋予保守的属性。譬如外部广场增加的半圆形廊道,在带来活力增加内容的同时,可能成为影响紧邻商店的遮蔽。
3、园区起搏器
- 张灼然、梁璧选 -
设计说明:
海珠同创汇园区有着便利的交通条件和丰富的自然景观。园区内的慢行空间系统复杂多样,整合了公共空间和景观资源,是园区的最大优势之一。园区的前广场是慢行系统的空间枢纽,设计希望利用广场的空间结构优势,通过前广场的改造进一步提升整个园区的空间活力,促进产业升级。设计研究从日常生活的视角出发,以人的行为活动为重点调研,发现同创园区内已有的主理人主导的非标准化运营的业态(如竖德生活馆、扉行器无界社区等)周边有较高的活力,且在网络上较为出圈。当下社会强调人多元化的兴趣爱好和需求,非标业态的出现回应了这一趋势,是非固定形式、强调个性与差异的商业形态。经研究发现,园区内的非标业态多生长在园区已有的生态景观资源周边,在微观尺度上,这些非标业态利用外部公共空间资源提升自身价值、产生多样场景,在中观尺度上带动提升了周边的公共节点的空间活力,在宏观尺度上,这些“非标节点”成为整个园区的公共资源一部分,整体提升园区的空间活力。究其根本的机制体现为空间使用外溢,带来不同功能和活动的交叠,促进空间和业态生长迭代。所以,我们希望过空间改造和业态升级,将广场进一步打造为一个放大的公共“非标节点”,对外作为园区的形象展示,映射内部先进运营模式,对内带动空间和业态活化升级。
目标定位:
意在将园区入口广场打造成一个由非标准商业、非标准办公、非标准展览的非标准模式的集合空间,通过慢行系统将入口广场与园区内现有非标准模式业态串联起来,形成完整的社群聚落。

3组-目标定位
设计意向:
该设计通过对国内现有较成熟非标准模式商业的分析,意在将园区入口广场及三侧建筑整合,进行一个由非标准模式引领下的整体空间设计。

3组-设计意象
设计策略:
入口广场与园区空间通过下图三个节点相连,三处节点都有空间较为拥挤的问题,且与园区慢行空间系统有潜在的联系,其中A、B节点人流量较大是广场与园区和城市联系的核心节点。设计对这几处节点进行重点改造,进一步打通广场与园区慢行空间系统的联系。

3组-设计策略1广场内部空间可以分为:休憩活动区域,通过性区域,框架覆盖展览区域。已形成承载了多种活动的公共空间节点。广场空间和建筑立面要素较多,缺乏整体性空间和形象,广场和建筑的各部分功能和空间较为独立,使用场景单一。设计延用园区内非标空间节点的形成机理,整合现有空间资源,将广场打造成富有活力的园区展示平台。

3组-设计策略2
场地目前业态较为丰富(商业、办公、展览、多功能活动场地), 但单个业态使用场景和空间模式较为单一,细分的功能需求体现不足。整体上各功能空间联系性不足。设计依据园区内非标模式研究结果对广场业态做整体提升。

3组-设计策略3设计基于场业态和空间的优势,结合前期研究成果对广场上各部分进行整体升级。

3组-设计策略4
方案效果:

3组-效果图1

3组-效果图2

3组-效果图3

3组-效果图1现状对照

3组-效果图2现状对照

3组-效果图3现状对照
剖透视:

3组-剖透视
典型模型照片:

3组-典型模型照片
嘉宾点评:
1.在前期研究中,对于园区内现有业态及对应的空间模式研究分析较为全面,并较好地指导了后续的具体设计;
2.在方案设计中,在既有建筑表面运用轻质结构形成具有多种用途的腔层空间这一操作是相比较合适的,可操作性较强;
3.该方案在对于商业模式的探讨和研究上比较深入,同时选择的设计语言也是较为适合既有建筑改造更新的,但对于广场铺地的考虑还有欠缺;
4.方案的最大特点和潜力其实是在轻质结构形成的腔层空间上,通过悬挑不同的距离形成不同尺度的空间,但这一特点和潜力与方案概念“园区起搏器”关联度有待考虑。
4、月令树林
- 肖敏荣、唐鑫-
设计说明:
海珠同创汇所在的半岛一直作为生产空间,在产业的变化中被塑造着,从最初的上涌村的果园到村集体的纺织工厂再到如今的生态优势突出的创意园区,这一演变过程中,月令秩序有兴盛也有失落。方案从场地历史记忆出发,向上溯源,复兴生产空间的秩序-月令文化。通过广场更新优化现有月令事件,构建当代海珠同创汇“新月令体系”。整合提升园区现有资源,塑造园区核心竞争力的文化。中区广场作为月令体系的核心空间,成为同创汇对广州,对世界亮相的窗口。
设计意向:

4组-设计意向
设计策略:

4组-设计策略
方案效果:

4组-效果图1

4组-效果图2

4组-效果图1现状对照

4组-效果图2现状对照
剖透视:

4组-剖透视
典型模型照片:

4组-典型模型照片1

4组-典型模型照片2
嘉宾点评:
1.十二月令的策划图对运营和活动策划的考虑很充分,也比较有意思。
2.中部可移动的构筑物形成了很好的标识形象,但设计从收益和形态方面可能用力过度了一些。装置对广场本身占据过多,占据替代了现有的功能,可以考虑减少装置数量。
3.运用绿植景观的方式作为广场设计的切入点很有意思。可以进一步强化果园相关的园区主题。将绿植等作为产品的设计思路是对的,可进一步从产业、经济、气候强化产品的概念。
4.绿植景观多在二层,视觉展示不够强,可考虑更多的地面的绿植设计。
5.方案设计与手工模型的表达有冲突,在风格上可以更加协调。
6.方案偏概念设计,落地性不强,后续运营团队可以参考这种思路,有所启发。
四:答辩现场照片

调研成果答辩合影

中期答辩现场

终期答辩现场
信息来源:建筑系党支部

